Konstruktion/Materialer: Boligbyggeriets hovedkonstruktioner udføres med præfabrikerede filigran-betondæk der kombineres/støbes sammen med in-situ støbte betonsøjler og stabiliserende betonskiver, placeret omkring trappeopgangene/installationernes føringsveje.
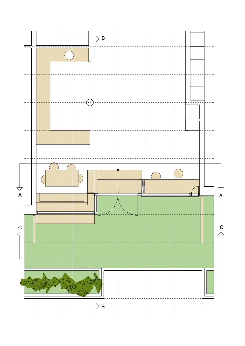
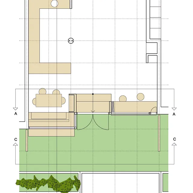
Facadematerialet mod sydvendte havearealer er primært store oplukkelige skyde-glaspartier i trærammer, varieret med særlige træpaneler (som hindrer indkig og skærmer for sol), samt indbyggede slagbænke i træ som samtidigt giver ekstra opbevaringsplads.

Facadematerialet mod de mere nordvendte gade- og ankomstarealer består af 400 mm brede fuldt isolerende Celblok-sten med pudsede/kalkede overflader, hvori indpasses mindre vandrette vinduespartier til hhv. køkken- og toiletrummene, og en grad større vinduer til de sove- og arbejdsværelser som ligger placeret der.
Alle vindues- og facadepartier i det terrasserede byggeri forbinder den enkelte bolig direkte med en privat haveenhed, hvor beboerne har frit råderum til diverse udplantninger/ borde/ stole/havedisponering mv.  Større opmurede plantekasser forhindrer generelt nedkig til underliggende etagers haver og gøremålene der.
På øverste etagers tagarealer integreres solcelleanlæg, solfangere, mindre by-vindmøller, diverse former for opsamling af regnvand til vanding af de enkelte haver, samt til mindre vandbasiner til åkander, vandranunkler, krebs, frøer/haletudser mv.

Filigran betonbyggesystemer: Her er tale om et fleksibelt byggesystem, der kombinerer færdige betonelementer med in-situ-støbte konstruktioner. Byggemetoden forener dermed egenskaberne fra tidligere anvendte støbeprincipper, giver tidsbesparelser ved hurtig montage uden for¬skalling og kræver kun et minimum af efterbehandling. Den in-situ-støbte konstruktions styrke og stabilitet bevares samtidigt, hvilket har høj statisk betydning. Herudover kan den udføres med indstøbt isolering, samt udsparinger til el-dåser og -rørføringer, mens lydkrav, krav om vandtæthed opfyldes.
Celblok-sten. Celblok 275 som anvendes har dimensionerne 400 x 200 x 600 mm, isoleringsevnen er høj med en U-værdi på 0,20. Her er tale om en hel-isolerende porebeton med let rumvægt, bestående af lukkede celler som fastholder luften. Sidstnævnte sikrer den høje isoleringsevne og bidrager til et lavere energiforbrug. Vægge af Celblok-sten skaber et godt indeklima, idet porebeton er et fuldt ud åndbart materiale,  som desuden har et lavt varmeledningstal og derfor føles lun at være i kontakt med.